Với căn nhà dài kiểu bố trí gác suốt, KTS đã tư vấn cải tạo để căn nhà cấp 4 có một không gian hiện đại với khoảng thông tầng lớn để lấy ánh sáng và không gian trong lành cho căn nhà nhưng vẫn đầy đủ những yêu cầu mà chủ nhà đưa ra.

Không gian sinh hoạt chung với khoảng thông tầng lớn luôn tràn ngập ánh sáng.
Xin chào các KTS chuyên mục Tư Vấn Nhà Hay
Mình đã theo dõi chuyên mục từ lâu và rất thích những ý tưởng tư vấn của các KTS. Nay mình có nhu cầu cải tạo căn nhà cấp 4 (hiện trạng vui lòng xem file đính kèm giúp mình). Nhờ các anh/chị tư vấn cải tạo giúp mình theo hướng làm thêm gác suốt. Bên dưới bố trí không gian sinh hoạt chung như: chỗ để xe, phòng khách, cầu thang, phòng ăn, nhà bếp .... liên thông với nhau.
Tầng trên bố trí 2 phòng ngủ chính và 1 phòng ngủ nhỏ (vợ chồng anh chị cuối tuần về chơi), phía trước trên mái hiên làm lô gia hóng mát.
Hy vọng sớm nhận được hồi âm của chuyên mục. Xin chân thành cám ơn chuyên mục rất nhiều, chúc aFamily càng ngày càng phát triển và có thêm nhiều bài hay.
Lâm Quang Phúc
Kiến trúc sư tư vấn:
Dựa theo những thông tin mà bạn cung cấp và yêu cầu thiết kế cho ngôi nhà, chúng tôi xin đưa ra phương án mặt bằng tư vấn cải tạo để bạn tham khảo.

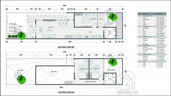
Mặt bằng hiện trạng.

Mặt bằng tư vấn cải tạo.
Mảnh đất của bạn có diện tích khá là dài với hình chữ nhật hơn nữa có không gian sân vườnkhá là rộng rãi, vì vậy để thiết kế ra một không gian thoải mái và tiện nghi không khó. Theo yêu cầu và mong muốn của bạn đề ra thì chúng tôi xin đưa ra phương án cải tạo: Tầng một là không gian sinh hoạt chung: gồm phòng khách, ăn, khu vực bếp nấu và sân phơi quần áo. Vì tầng hai là gác suốt (là một dạng gác lửng nhưng kéo dài suốt chiều ngang của căn nhà, cũng như được sử dụng các vật liệu như kính hay lan can thoáng chứ không xây tường) nên chúng tôi bố trí phòng ngủ master ở tầng một để không gian sử dụng được thoải mái và tiết kiệm diện tích. Trên gác suốt là hai phòng ngủ của khách và con có chung nhà vệ sinh. Đặc biệt là có khoảng thông tầng lớn ở phòng khách vừa mang lại ánh sáng tự nhiên cho cả nhà mà không gian trở nên rộng rãi và thoáng mát hơn.
Bước vào nhà là khoảng sảnh đệm cũng là nơi bố trí tủ giày. Vào bên trong nhà là phòng khách, ăn và khu vực nấu chạy dài dọc hành lang. Phòng khách với bộ ghế sofa áp tường đối diện là bàn ăn được bố trí bên cạnh của sổ có view nhìn ra vườn. Khu vực bếp nấu chạy dọc hành lang để tiết kiệm diện tích. Phía đối diện là phòng ngủ master và sân phơi. Nơi đây bạn có thể bố trí sân vườn để thư giãn nghỉ ngơi. Phòng ngủ master được bố trí nội thất đơn giản cũng như giao thông trong phòng. Căn phòng sẽ luôn tràn ngập ánh sáng từ hệ cửa kính lớn nhìn ra sân sau.
Cầu thang được bố trí giữa không gian phòng khách và bếp nấu. Lên tầng hai sẽ có khoảng hành lang đi vào hai phòng ngủ, cuối hành lang là nhà vệ sinh để thuận tiện cho việc đi lại. Phòng ngủ con và khách được bố trí nội thất đơn giản giống nhau có giưởng ngủ, tủ quần áo và bàn làm việc. Cả hai phòng ngủ đều có khoảng thông tầng lớn để lấy ánh sáng. Đó sẽ là khoảng không gian thú vị cho nơi bạn sống.
Cách bố trí đồ nội thất như vậy sẽ giúp cho không gian sống thêm tiện nghi và trở nên tốt hơn. Ngoài ra bạn cũng không nên trang trí rườm ra, điều đó sẽ làm cho căn phòng thêm chật chội. Bạn có thể sử dụng giấy dán tường hay những đồ decor độc đáo và bắt mắt, nó sẽ làm điểm nhấn giúp cho căn nhà của bạn thú vị và hấp dẫn hơn.
Hy vọng với phương án tư vấn cải tạo và bố trí này sẽ đáp ứng được tiện nghi cũng như nhu cầu sinh hoạt của bạn và gia đình. Sau đây là một số hình ảnh tham khảo giúp bạn hình dung không gian sống của mình được tốt hơn.

Hệ tủ bếp chữ I chạy dài hành lang tiết kiệm diện tích.

Bộ bàn ăn được bố trí bên cửa sổ đầy thơ mộng.

Hướng nhìn từ cầu thang đến phòng ngủ của con khá bắt mắt.

Phòng ngủ master tràn ngập ánh sáng với đồ nội thất cá tính.

Bàn làm việc gọn gàng đơn giản.

Phòng ngủ con với kiểu décor cá tính lạ mắt.

Nhà vệ sinh ốp gach lát không kém gì khách sạn.

Phòng ngủ dưới gác mái với tone màu tinh tế dễ chịu.

Khoảng thông tầng được décor bắt mắt.

Khu sân sau nhà được cải tạo khá đơn giản, bạn có thể thư giãn đọc một quyển sách nhẹ nhàng.







































